当前位置:首页 > 杏耀平台 >

杏耀手机APP登录一种三维扭曲异形旋转楼梯节点


一种三维扭曲异形旋转楼梯节点石材拼接结构,它包括立板石材、石材连接条、底板石材,所述立板石材与石材连接条粘合连接,立板石材靠近石材连接条的棱边开有槽一,槽一的截面为方形,石材连接条靠近立板石材的棱边开有槽二,槽二的截面为L形,立板石材与石材连接条连接处的外表面具有由槽一和槽二组合构成的工艺槽,工艺槽的截面呈“凸”字形;石材连接条靠近底板石材的一侧设置有凸出条,底板石材搭接在石材连接条的凸出条上。



所述石材连接条与底板石材的接触部位通过胶粘固定。



本方法的优点是:克服了斜边崩边现象,拼接方式简洁明快,石材纹理顺畅自然,杏耀娱乐注册登录提高了整体质量,提升了品质。



下面结合附图和实施例对作进一步的描述



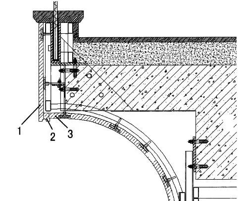
图1是本实施例的实施情况下的结构示意图;

图2是本实施例的主要部位的剖面示意图;

其中:1立板石材;2石材连接条;3底板石材。

具体实施方式



实施例:如图1到图2所示,一种三维扭曲异形旋转楼梯节点石材拼接结构,它包括立板石材1、石材连接条2、底板石材3,立板石材1与石材连接条2粘合连接,立板石材1靠近石材连接条2的棱边开有槽一,槽一的截面为方形,石材连接条2靠近立板石材1的棱边开有槽二,槽二的截面为L形,立板石材1与石材连接条2连接处的外表面具有由槽一和槽二组合构成的工艺槽,工艺槽的截面呈“凸”字形;石材连接条2靠近底板石材3的一侧设置有凸出条,底板石材3搭接在石材连接条2的凸出条上,石材连接条2与底板石材3的接触部位通过胶粘固定。



本实施例的实施包括以下要点:



1、立板石材1,在石材边缘留L槽,避免阳角石材碰边,减少崩边几率。

2、石材连接条2,将现有技术中的阳角收口转为阴角收口,避免阳角直碰收口方式,杏耀娱乐注册登录使石材相互作用点位于工艺槽内,减少石材崩边概率。

3、石材连接条2与底板石材3隐蔽接口位置,通过工艺边处理石材相接,使两块石材不存在直接拼缝,而造成石材崩边。



专利权人:苏州金螳螂建筑装饰股份有限公司

发明人:陈彦东 粱虓 冀瑞广 胡本国 苏宏清 石琳惠 韩玲玲 陈骏 禹用海 季林 王郭彬 王姗 刘成勇 孙玮 赵彤

  • 关注微信

猜你喜欢