当前位置:首页 > 杏耀平台 >

石材加工图纸标准参考


为了加强对石材加工图纸设计、编制工作的管理,提高图纸设计、杏耀线路测试制作质量水平,给生产加工和施工提供准确的依据,并便于加工、施工。



在国家现行有关设计文件规定的基础上,根据行业的特点并在总结多年经验和石材产品加工特点的基础,特对石材加工设计图纸做了后叙方面标准规定,望您能在自身知识面基础上有新的认识和提高。



本标准主要设计图纸篇幅、平立剖图的要求、图示符号及标注尺寸等。



一、图纸要求



1、规定石材加工图一般使用A4图纸(A3图纸一般要严格控制 使用),大于A2幅面的图,除有特殊要求,全部要求拆分成A4或A3图纸。



2、图纸要求清晰美观,细节部分(不能正常识图时)需要做局部放大。一份图纸能用一张图表达的尽量不要用多张图去表达。细节部分一般采用成比例放大(偶倍数)。上述要求均以,加工单复印后,有利于车间看清图纸,看懂图纸为目的,同时降低能耗。



备注:对小工程或较简单的图纸,可采用地面、墙面画在一 张图的表示方法,并推荐采用透视图表示方法。



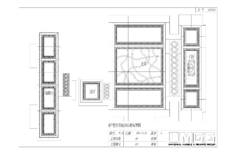
二、平面布置图



1、石材图纸中必须具备整体平面图,并注明各自部位的详细名称,杏耀线路测试如入口位置、电梯间、大堂等要表示清楚。





2、大中型工程和特殊工程必须有平面位置分布图及立面索引图,在图纸上面必须标明各部位的主次位置关系。



3、因为石材特殊性,我们在做图时,必须标明石材纹向要求。



索引图实例



三、立面图要求



1、墙面展开图应与平面图中各标明的序号意义对应,门窗的位置要在图中明确表示出来。



2、墙面展开顺序要依次展开,并按从左至右的顺序,阴阳转交之处需要标明。



3、立面图是承载各种加工信息最多的图纸,图纸中包含加工中的纹向、尺寸、厚度、磨边、材料种类及位置关系等。



4、在石材立面图中,必须标明石材的纹向。



立面图实例

含材料,线型磨边,尺寸标注

磨边大样、材料种类及位置关系等



四、剖面图要求



1、剖面图分为以下,全剖面、阶梯剖面、局部剖面、半剖面等,对有剖和广西(含石材与其他材料的装配关系)要合理使用剖面图,要求准确清晰的表达出来。



2、剖面图除了采用剖切位置线以外,还需要增设剖视方向线,它与剖切位置线垂直相交,但是不允许相交出头,该剖面图的数字编号应书写在剖切方向同一侧。不论剖切位置线或剖视方向线是水平、铅直或者倾斜位置,其数字编号均一律水平书写。

  • 关注微信

猜你喜欢