当前位置:首页 > 杏耀平台 >

杏耀注册石材整体橱柜相关知识及高端精美案例


关于厨房台面在选择上没有特别的限定

只要根据烹饪习惯选择合适就好

那么橱柜台面合适?

该选择什么的材质,杏耀注册有怎样的安装技巧?

需进行如何相对应的清洗与养护呢?

今日小编给大家带来关于厨房橱柜台面相关知识及精美案例


01

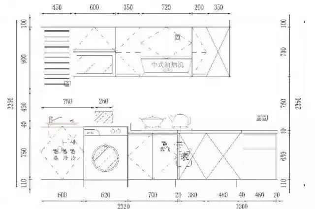
厨房橱柜台面的合适尺寸


橱柜尺寸的选择是非常重要的一个环节。好的橱柜不仅外观美丽,同时使用起也会让人感觉十分的舒适。下面小编为你介绍在选购橱柜之前有必要学习一下橱柜尺寸的相关知识。



橱柜尺寸一:杏耀注册地柜高度

按照人体工程学,应为780mm更为合适。



橱柜尺寸二:地柜宽度

这个和水槽的大小有关,能放进最大水槽子的宽度及正常的宽度家用的水槽(洗菜盆)最大的也是470mmX880mm,做橱柜最好要600~650mm左右更为合适,而且更美观。



橱柜尺寸三:台面厚度

石材的厚度有几种,15mm、20mm、25mm、30mm等,可根据需要定制,橱柜台面可以用厚度25mm以上的石材,耐用性强橱柜尺寸。



四:台面高度

橱柜台面的高度如果是橱柜应在780mm为合适。

  • 关注微信

猜你喜欢