当前位置:首页 > 杏耀注册 >

杏耀测速图解石材装饰细部收口要点大全


1、石材墙面横缝,需根据人体的视线高度排布,施工时需厂家定制加工,杏耀登陆现场安装。

在新窗口打开图片



2、墙面石材阳角收口均需45度拼接对角处理;待墙面石材全部铺贴完成后,须调制与石材同色的云石胶作勾缝处理,勾缝必须严密。

在新窗口打开图片


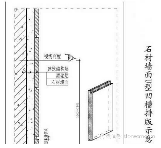
3、石材墙面有横缝时(如V字缝,凹槽)时,阴角收口均需45度(角度稍小于45度,以利于拼接)拼接对角处理,应在工厂内加工完成。

在新窗口打开图片


4、石材检修门:

在新窗口打开图片



(1)石材暗门需采用热镀锌角刚,角钢大小及滚珠轴承大小根据门体的自重选定,焊接部位作防锈处理。

(2)石材干挂或安装,门边、框边切割面需抛光处理,钢架面采用防潮板包封。

(3)门与框之间安装限位链。


5、钢架台盆安装注意防锈等的处理:

在新窗口打开图片


(1)台盆铁甲须采用国标镀锌角钢,焊接处做防锈处理。

(2)台盆固定于固定构件上,固定构建与石材垫块用不锈钢或镀锌螺栓固定,杏耀登陆垫块背面及台面粘结部位需经打毛处理用大理石胶粘接固定,台盆与固定构件连接处需用橡皮垫块,台盆与台面板下沿口用耐候胶密封。


6、台下柜台盆安装

台盆固定于固定构件上,固定构建与台下柜基层面8mm对穿螺丝固定,台盆与固定构件连接处用橡皮垫块,台盆与台面板下沿口用耐候胶密封。

在新窗口打开图片


7、卫生间玻璃隔断与大理石墙面交接施工节点:

在新窗口打开图片

(1)淋浴房玻璃安装前,在两块石材间预埋“U”形不锈钢槽,用AB胶或云石胶粘结固定,把玻璃嵌入槽内,接缝处打透明防霉硅胶。

(2)U型不锈钢内径规格宽比玻璃厚度大2-4mm,深为15-18mm,壁厚不小于1.2mm。

(3)玻璃需四周磨边处理。



8、淋浴房门预埋件安装

在石材安装前预埋铁杆,直接与墙体固定(砂加气墙需采用对穿螺丝杆加固)。

  • 关注微信

猜你喜欢