当前位置:首页 > 杏耀测速 >

杏耀登录石材窗口抹灰收口实例参考


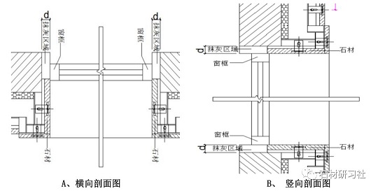
石材图纸窗口收口案例参考



如上图:根据图纸尺寸,d值应保留在35mm~50mm之间,但现场结构、二次结构误差较大,d值现场量测集中在25mm~65mm之间,甚至个别窗口出现0~130mm之间,对于现场实际情况,现交底如下。



一、材料要求



1、水泥:



a、采用PC32.5级的普通硅酸盐水泥。

b、水泥进场使用前,应分批对其强度、凝结时间、杏耀测速登录安定性进行复试。

c、当在使用中对水泥的质量有怀疑或水泥出厂超时三个月时,应复查试验,并按其结果使用。

d、不同品种的水泥不得混合使用。



2、砂:平均粒径0.35~0.5mm的中砂,使用前过5mm孔径的筛子,砂子颗粒坚硬、洁净,不得含有黏土及其他杂质。



3、水:使用现场的自来水。



4、建筑胶水:108胶、钢丝网(10mm×10mm×0.8mm)、射钉等。5、蒸压灰砂砖(240×115×53mm)。



二、主要机具



砂浆搅拌机、磅秤、射钉枪、孔径为5mm的筛子、手推车、铁锹、平锹、大桶、灰槽、胶皮管、小水桶、喷壶、托灰板、木抹子、铁抹子、阴、阳角抹子、大杠、中杠,2m靠尺板、托线板、方尺、水平尺、卷尺、扫帚、粉线包、小白线、线坠等。



三、作业条件



(1)主体结构必须经过相关单位(建设单位、杏耀测速登录施工单位、质量监理、设计单位)检验合格并已验收。



(2)抹灰前窗户四周干挂石材已施工完毕。



(3)抹灰前将混凝土墙面清理干净并进行毛化处理,抹灰厚度超过35mm的地方挂钢丝网。



(4)连接处缝隙应用1:3水泥砂浆分层嵌塞,将其填塞密实,表面压抹平整。



(5)抹灰开始前应先搭好脚手架,架子应离开墙面20~25cm,便于操作。



四、主要施工方法和工艺



4.1工艺流程



墙面基层清理→浇水湿润→基层处理→吊垂直、套方、找规矩→做护脚→抹底灰→抹罩面灰→养护



4.2施工方法



(1)基层清理:应清除表面杂物,残留灰浆、舌头灰、尘土等。



(2)浇水湿润:一般在抹灰前一天,用喷壶顺墙自上而下浇水湿润,宜浇水二次。



(3)基层处理:抹灰打底前应对基层进行处理。对混凝土墙面采用水泥砂浆掺界面剂(配合比为界面剂:水泥:砂=1:2:2)进行“毛化处理”。即先将墙体表面灰浆、尘土、污垢清刷干净,然后用水泥细砂浆内掺界面剂喷到墙上,其喷点要均匀,毛刺长度宜为5mm左右且不宜大于8mm,终凝后浇水养护,直至水泥砂浆毛刺有较高的强度(用手掰不动)为止。



(4)吊垂直、套方、找规矩:分别在门窗口角、垛、墙面等处吊垂直,所有抹灰面与石材平齐。



(5)抹底灰:5.1、d小于50mm,底灰选用1:3水泥砂浆,分层压实抹平。抹前应先抹一层薄灰,要求将基体抹严,抹时用力压实使砂浆挤入细小缝隙内,接着分层装档,用木抹子搓毛。抹灰厚度超过35mm收口墙大面与窗侧壁直角交界面加钢丝网,两面钢丝网搭接宽度均不小于100mm,采用射钉枪固定钢丝网,固定钢钉间距不大于150mm。



5.2、对于竖向墙面与竖向窗户侧壁个别超过60mm厚空隙,采用灰砂砖补砌,砌筑砂浆上强度并达到六成干后抹灰。



5.3、对于d值大于60mm的窗户上口,在结构上安装保温板后,在保温板外加钢丝网固定,底面固定在窗户下口结构上,墙大面钢丝网宽度不小于100mm,均采用带垫片钢钉固定(如图1)。

  • 关注微信

猜你喜欢