当前位置:首页 > 杏耀注册 >

7种石材相接工艺详图


01 墙面石材与顶面乳胶漆相接工艺





适用部位:



①、墙面石材与顶面乳胶漆 杏耀代理注册

②、石材背景与顶面乳胶漆

③、石材线条与顶面乳胶漆

④、石材乳胶漆相接窗帘盒

⑤、石材乳胶漆相接其他洗墙灯做法



注意事项:



①、干挂与湿贴法的配合

②、对不同材质接缝的完善

③、对不同材质收口美观

④、根据现场实际情况进行钢架制作



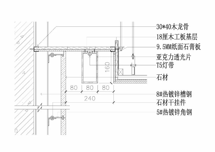
用料及分层做法:



①、钢架基层采用8#槽钢顶面、地面固定,杏耀代理注册按石材分缝横向焊制镀锌槽钢

②、采用50系列轻钢龙骨,木龙骨与木工板防火涂料三遍处理

③、外封纸面石膏板,腻子乳胶漆处理

④、选取20mm石材,通过钢架干挂石材防护处理

⑤、安装顶面亚克力灯箱

  • 关注微信

猜你喜欢