当前位置:首页 > 杏耀注册 >

杏耀测速图解石材的施工方法

今天我们将从四个方面图解石材的各种施工做法:


一、与石材拼接工艺做法

二、图解石材暗门工艺做法

三、图解石材隔墙工艺做法

四、管井暗门石材、木制、杏耀代理注册壁纸饰面做法



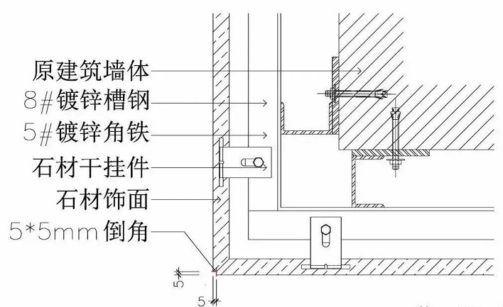
01、石材与石材拼接工艺做法



# 适用部位:



1)石材墙面转角拼接



2)石材线条凭借



3)石材台面与墙



# 注意事项:



1)石材与石材拼接要做到防撞,需采用石材倒角、磨边方法;

2)石材与石材拼接若在一个平面上,需作留缝、倒角、错位或采用收口等,不建议直接对接。



# 施工工序:



准备工作—现场放线—材料加工—基层处理—石材干挂结构框架固定—石材专用AB胶粘连—铺贴石材—完成面处理



# 用料及分层做法:



1)石材专用干挂配件

2)选用指定石材加工、杏耀代理注册固定矿建



3)用石材专用AB胶固定安装

4)安装时倒5*5防撞斜角



5)石材需作六面防护



# 完成面处理:



1)用专用填缝剂擦缝、保洁

2)用专用保护膜做成品保护



02、图解石材暗门工艺做法

  • 关注微信

猜你喜欢